loader image

Hillside 38 – Gable

Sold

House & Land Packages

Hillside 38

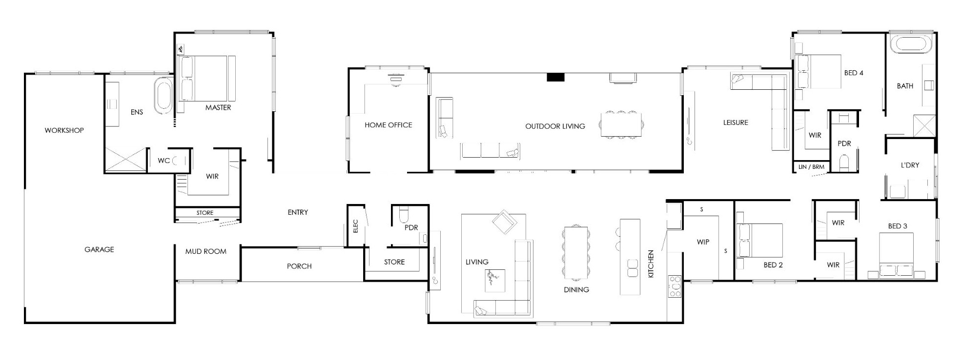
4 Bed 2 Bath 2 Living 2 Car

Gable Facade

Lot 207 Smith Place (Harrisville Pastures), Harrisville

Harrisville Pastures

Land Size 3090m²

House Size 348m²

PACKAGE PRICE

$1,327,500*

House Width
37.04 m
House Length
11.84 m
House Total
396 m²
Internal Area
348 m²
External Area
47 m²
Suitable Lot Width
0 m

Details

  • Leisure5.3 x 4.4
  • Living6.0 x 4.2
  • Dining6.0 x 3.5
  • Home Office4.2 x 3.2
  • Outdoor Living4.0 x 10.2
  • Garage6.0 x 6.0
  • Master4.6 x 3.9
  • Bed 23.2 x 3.2
  • Bed 33.2 x 3.2
  • Bed 43.1 x 3.7

*The plan & design of this house is owned by Creation Homes & under the copyright act of 1968 cannot be reproduced in any shape or form without prior wri en authorisation from Creation Homes. Any doing so will be liable for action under the act. Plans shown are indicative only and are subject to minor change in the interest of product improvement. Images and floorplans are not to scale and are for marketing purposes only. Items such as landscaping, paving and driveway may not be included. Please consult your New Home Specialist for further details. *Price current as of 01/07/2025 and is based on Developer supplied engineering plans and plan of subdivision. Price does not include stamp duty, government, legal or bank charges. Creation Homes (QLD) Pty Ltd Builder’s

Scroll to zoomDownload Package Enquire

Inclusions

  • 900mm Stainless Steel Appliances
  • 20mm Silica-Free Stone Benchtops to Kitchen, Ensuite and Bathrooms
  • 2590mm Ceiling Height
  • 5000L Water Tank
  • Clothesline and Letterbox
  • Colorbond Roof
  • Colours by Creation Design Studio Appointment
  • LED Lighting Throughout
  • Site Cost Allowance
  • Ducted Air Conditioning
  • High Quality Floor Coverings Throughout
  • Plus Much More!
  • Tiled Porch and Outdoor Living Area

Creative by Nature. Functional by Design.

Leaders in Queensland House and Land Packages

Unlocking the dream of building your perfect home has never been easier with our exceptional new house and land packages Queensland families will love. Get ready to upgrade your new home-build dreams with the perfect duo of style and value. Our exclusive Creation Homes land and home packages tick every box for prospective house hunters in the Brisbane, Gold Coast, and Sunshine Coast regions and beyond.

Enquire

Love the floorplan but the location is not for you. Get in touch today to discuss this home design

Enquire
Images are illustrative only and may contain upgraded materials and/or fixtures and finishes not supplied by Creation Homes (QLD) Pty Ltd. These items may include, but are not limited to, non-standard inclusions available as optional upgrades and items such as landscaping, fencing, water features, pools, and furniture. Accordingly, any prices on this website do not include the supply of any of those items. Furthermore, images contained on this website may depict fixtures, finishes, and features which are not included in the house designs or house price. Facades are indicative only, conceptual in nature and subject to change. Floorplans on this website are not to scale and sizes may vary dependent on the selected façade. Floor plans may depict fixtures, fittings, features, finishes, inclusions, furnishings, vehicles and/or other products which are not included in the house design, not included in the house price and/or not available from Creation Homes (QLD) Pty Ltd. Floor plans, images, renders and photographs used may not represent the specification offered by Creation Homes as these vary from time to time, and any purchaser is encouraged to seek further information from our New Home Specialists. Display homes feature upgrades that may be available at an additional cost to current promotions. This website and the information contained are to be used as a guide only and Creation Homes makes no warranties on the accuracy or completeness of the information. Creation Homes (QLD) Pty Ltd is licensed under QBCC Act 1991 (QBCC Licence 1272561).