loader image

Woodhaven 27 – Flat

Sold

House & Land Packages

Woodhaven 27

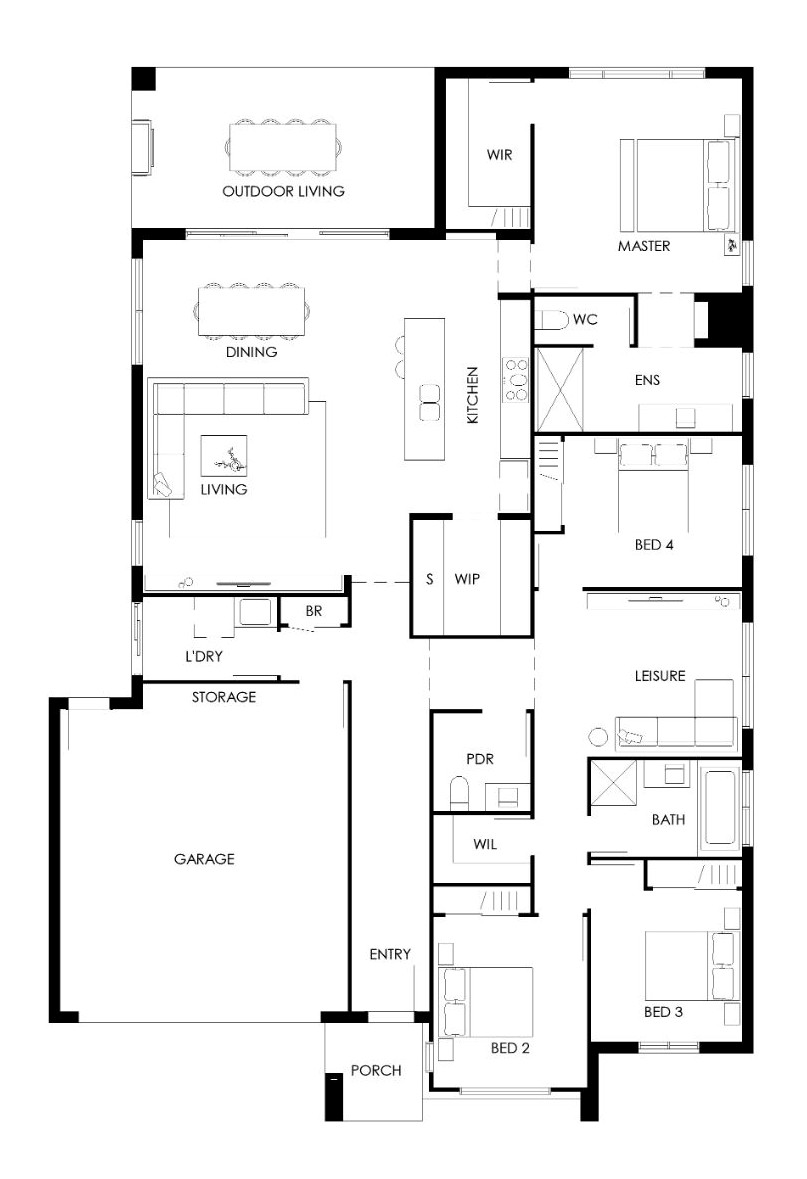
4 Bed 2 Bath 2 Living 2 Car

Flat Facade

Lot 5107 Ironwood Avenue (Aura), Nirimba

Aura

Land Size 627m²

House Size 255m²

PACKAGE PRICE

$1,329,000*

House Width
13.95 m
House Length
20.88 m
House Total
278 m²
Internal Area
255 m²
External Area
23 m²
Suitable Lot Width
16 m

Details

  • Leisure3.3 x 4.1
  • Living4.0 x 4.6
  • Dining3.0 x 4.6
  • Garage6.0 x 5.7
  • Outdoor Living3.2 x 6.0
  • Master4.3 x 4.1
  • Bed 23.4 x 3.0
  • Bed 33.0 x 3.0
  • Bed 43.0 x 3.5

*The plan & design of this house is owned by Creation Homes & under the copyright act of 1968 cannot be reproduced in any shape or form without prior wri en authorisation from Creation Homes. Any doing so will be liable for action under the act. Plans shown are indicative only and are subject to minor change in the interest of product improvement. Images and floorplans are not to scale and are for marketing purposes only. Items such as landscaping, paving and driveway may not be included. Please consult your New Home Specialist for further details. *Price current as of 01/07/2025 and is based on Developer supplied engineering plans and plan of subdivision. Price does not include stamp duty, government, legal or bank charges. Creation Homes (QLD) Pty Ltd Builder’s

Scroll to zoomDownload Package Enquire

Inclusions

  • Ceiling Fans Throughout
  • 900mm Stainless Steel Appliances
  • 20mm Silica-Free Stone Benchtops to Kitchen, Ensuite and Bathrooms
  • 2590mm Ceiling Height
  • 5000L Water Tank
  • Clothesline and Letterbox
  • Colorbond Roof
  • Colours by Creation Design Studio Appointment
  • High Quality Floor Coverings
  • Site Cost Allowance
  • Up to 45m2 Exposed Aggregate Driveway
  • Ducted Air Conditioning
  • LED Downlights Throughout
  • Plus Much More!
  • Tiled Porch and Outdoor Room

Creative by Nature. Functional by Design.

Leaders in Queensland House and Land Packages

Unlocking the dream of building your perfect home has never been easier with our exceptional new house and land packages Queensland families will love. Get ready to upgrade your new home-build dreams with the perfect duo of style and value. Our exclusive Creation Homes land and home packages tick every box for prospective house hunters in the Brisbane, Gold Coast, and Sunshine Coast regions and beyond.

Enquire

Love the floorplan but the location is not for you. Get in touch today to discuss this home design

Enquire
This website may contain images with fixtures and finishes not supplied by Creation Homes Qld Pty Ltd. These items may include, but are not limited to, items such as landscaping, fencing, water features and pools. Floorplans, images, renders and photographs used may not represent the specification offered by Creation as these vary from time to time and any purchaser is encouraged to seek further information from our New Home Specialists. Floorplans on this website are not to scale and sizes may vary dependent on the selected façade. This website and the information contained are to be used as a guide only and Creation Homes makes no warranties on the accuracy or completeness of the information. Creation Homes (QLD) Pty Ltd is licensed under QBCC Act 1991 (QBCC License 1272561). EE0402